/
【外観】
-
室内洗濯機置場

リビング- 保証金
- -
- 敷引 / 償却
- - / -
- 敷金積み増し
- -
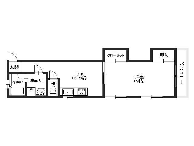
- 間取り / 詳細
- 1LDK
LDK 6.5帖/洋室 9.0帖 - 向き
- 南
- 専有面積
- 44.60㎡
- バルコニー
(テラス)面積 - -
- 所在階 / 階建て
- 2階 / 4階建
- 建物構造
- 鉄筋コンクリート
- 築年月
- 1985年4月(築40年)
- 種別
- 賃貸マンション
- 保険会社 / 料金
- 有 / -
- 保証会社 / 料金
- - / -
- 駐車場
- 空有 3,000円 30m
- 現況
- 空家
- 入居可能時期
- 相談
- 設備条件
-
- 陽当り良好 / 閑静な住宅地 / ガスコンロ設置可 / 室内洗濯機置場 / バルコニー / 駐輪場 / ガスコンロ / コンロ2口以上 / オープンキッチン / エアコン / 光ファイバー / 角部屋 / 初期費用カード決済可
- 契約期間
- 2年
- 賃貸区分
- 一般
- 更新料
- -
- 更新事務手数料
- -
- 総戸数
- 27戸
- 特優賃
- -
- 取引態様
- 一般媒介
- 物件番号
- 96131197
- 管理コード
- -
- 情報更新日
- 2025年12月12日
- 次回更新予定日
- 2025年12月26日
- 取扱会社
-
- 株式会社サニースポット 大町店
- 広島県広島市安佐南区中須1丁目27-2 中須壱番館 1階
- TEL:082-831-1120
- 広島県知事 (3) 第10009号
- 備考
- 【クレジットカード払い可能!】【オンライン内見可能!】【最寄駅まで送迎可能!】【LINEで簡単お問合せ!】→ID:@317twkvr お友達登録者数合計5600人様突破!◆サニースポット大町店◆★本物件はサニースポット大町店でご紹介出来ます★当社は、大手ハウスメーカー様の物件を筆頭に【ほぼすべての物件を一括してご紹介可能】な【お部屋探しの専門店】です♪お気軽にお問い合わせください!^^【アストラムライン・JR 大町駅徒歩2分】【お客様用駐車場有】【送迎サービス有】【ご予約なしご来店可能】※写真はご参考にご覧ください。
-
ホームセンター
西村ジョイ メガホームセンター 八木店
772m(10分)
-
家電製品
ヤマダデンキ テックランド広島八木店
1072m(14分)
物件の特徴
セールスポイント
☆エアコン新品!独立洗面台!水回り綺麗なお値打ち物件!☆
ポイント
担当者のコメント
パノラマ画像
基本情報
設備条件
その他
周辺施設
近隣の物件
八木興産ビル
4.3万円
-
1LDK(44.60㎡)
末柗 翔