ベルシャトー加登

5.2万円 管理/共益費 -

広島県広島市安佐南区緑井2丁目

可部線「緑井」駅徒歩7分

広島高速交通アストラムライン「大町」駅徒歩10分

可部線「大町」駅徒歩10分

価格
5.2万円 管理/共益費 -
間取り/面積
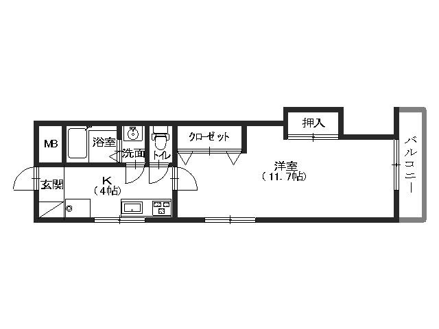
1K/37.50㎡
所在地
広島県広島市安佐南区緑井2丁目
築年
1986年10月(築39年)
駐車
空有
交通

可部線緑井」駅 徒歩7分

広島高速交通アストラムライン大町」駅 徒歩10分

可部線大町」駅 徒歩10分

ベルシャトー加登の基本情報

物件名
ベルシャトー加登
価格
5.2万円
管理/共益費
-
築年月
1986年10月(築39年)
総戸数
-
所在地
広島県広島市安佐南区緑井2丁目
交通

可部線緑井」駅 徒歩7分

広島高速交通アストラムライン大町」駅 徒歩10分

可部線大町」駅 徒歩10分

ベルシャトー加登の詳細情報

設備条件
  • エレベーター
  • 駐輪場
  • バイク置場あり
  • 敷地内ごみ置き場
  • 外観タイル張り
設備(その他)
    -
駐車場/月額
空有/10,000円
用途地域
-
戸数
- / -
取引態様
一般媒介
備考
歩いて徒歩2分の場所に万惣緑井店があるのもポイント。共用部にはエレベータ・敷地内ごみ置き場などが備わっておりとても充実しています。初期費用のカード決済ができます。眺めの良い物件です。外観タイル張りは、ランニングコストがあまりかかりません。サニースポット 大町店には、広島市安佐南区エリアの賃貸情報が豊富です。もちろん、店舗へのご来店もお待ちしております。

ベルシャトー加登のコメント(おすすめポイント)

近くにはセブン-イレブン 広島緑井2丁目店(徒歩2分)がありちょっとした買い物に便利です。共用部にはエレベータ・敷地内ごみ置き場などが備わっておりとても充実しています。駅まで徒歩7分なので、アクセスの良い物件です。こちらの物件はマンションです。メンテナンスの手間いらずで嬉しい、外観タイル張りを採用しております。広島市安佐南区で新しい住環境をお探しなら、可部線緑井駅近くでお求めください。いつでもサニースポット 大町店までお気軽にお問い合わせください。

ベルシャトー加登で募集中の物件

  1. 5階

    11.34坪 (37.50㎡)

    5.2万円(4585.54円/坪)

近隣の物件

  1. 広島市安佐南区大町東2丁目

    1K (24.18㎡)

    4.3万円

  2. 広島市安佐南区長楽寺1丁目

    2DK (53.53㎡)

    5万円

  3. 広島市安佐南区緑井1丁目

    3LDK (65.88㎡)

    10万円

  4. 広島市安佐南区長束1丁目

    3DK (52.04㎡)

    6万円

ベルシャトー加登

お気軽にお問い合わせください

無料お問い合わせ

株式会社サニースポット 大町店

082-831-1120

9:30~18:30

(休:水曜日)